Appartamenti bilocale in vendita 101 m², Trieste, località Centro cittā

Friuli-Venezia Giulia Trieste Centro cittā Rif. EEP-702
+

Bilocale in via Cesare Battisti

Prezzo
€ 300.000
Contratto
Vendita
Tipologia
Appartamenti
Destinazione
Residenziale
Regione
Friuli-Venezia Giulia
Provincia
Trieste
Comune
Trieste
Località
Centro cittā
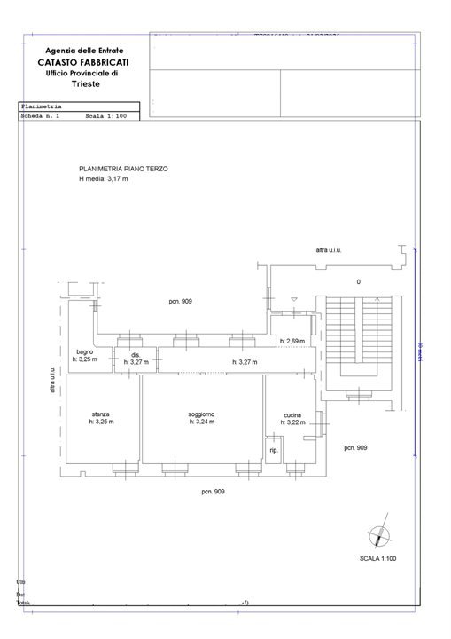
Superficie
101 m²
Locali
2
Camere
1
Bagni
1
Condominio mensile
€ 200

Bilocale in vendita in centro a Trieste, in via Cesare Battisti. Situato al terzo piano di un palazzo storico, questo appartamento di 101 mq., catastali, č l'ideale per chi desidera una residenza elegante e ben posizionata. Con una camera da letto, un bagno, una cucina abitabile e un ampio soggiorno, l'immobile offre anche la comoditā di un ascensore. Da ristrutturare, questo bilocale offre la possibilitā di creare uno spazio su misura, adatto alle tue esigenze. Nonostante la sua posizione centrale, l'appartamento č silenzioso e tranquillo, dato che si affaccia sulla corte interna.
Classe energetica: F. (EP gl, nren 202,44 KWh/mq anno).
Le ultime 4 immagini dell'annuncio sono generate con l'IA, sono inserite per dare un'idea di come potrebbe venire l'immobile ristrutturato.
I dati e le informazioni presenti nell'annuncio hanno carattere esclusivamente informativo e non costituiscono elemento contrattuale.
Contattare l'agente Lorenzo Prizzon tel. 3314915665 mail lorenzo@devetti-immobiliare.it

Specificazioni dell'immobile: Il palazzo č soggetto al vincolo dei beni culturali limitatamente alle facciate che danno sulla pubblica via. E' soggetto alla clausola sospensiva di 60 gg.

Classe Energetica:

Caratteristiche

Condizioni: Da ristrutturare
Riscaldamento: Centralizzato
Piano: 3 - piani edificio: 5
Cucina: Abitabile
Anno di Costruzione: 1874
Ascensore:

Foto

Bilocale in via Cesare Battisti - 1
Bilocale in via Cesare Battisti - 2
Bilocale in via Cesare Battisti - 3
Bilocale in via Cesare Battisti - 4
Bilocale in via Cesare Battisti - 5
Bilocale in via Cesare Battisti - 6
Bilocale in via Cesare Battisti - 7
Bilocale in via Cesare Battisti - 8
Bilocale in via Cesare Battisti - 9
Bilocale in via Cesare Battisti - 10
Bilocale in via Cesare Battisti - 11
Bilocale in via Cesare Battisti - 12
Bilocale in via Cesare Battisti - 13
Bilocale in via Cesare Battisti - 14
Bilocale in via Cesare Battisti - 15
Bilocale in via Cesare Battisti - 16
Bilocale in via Cesare Battisti - 17
Bilocale in via Cesare Battisti - 18
Bilocale in via Cesare Battisti - 19

Planimetrie

Bilocale in via Cesare Battisti - 1

Mappa