Appartamenti bilocale in vendita via del Broletto 22, Trieste, località San Giacomo / via d'Alviano

Friuli-Venezia Giulia Trieste San Giacomo / via d'Alviano via del Broletto 22

Prezzo

€ 69.000

Appartemento locato in via del Broletto
Rif.: GSE-687

  • Vendita
  • Contratto
  • 81 m²
  • Superficie
  • 2
  • Locali
  • 2
  • Camere
  • 1
  • Bagni
  • 209.09 kWh/m2
  • Classe Energetica
  • Friuli-Venezia Giulia
  • Regione
  • Trieste
  • Provincia
  • Trieste
  • Comune
  • San Giacomo / via d'Alviano
  • Località

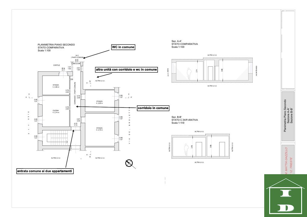
Vendesi in via Broletto un'appartamento attualmente locato con canone concordato appena rinnovato (3+2). Canone mensile € 300,00 più spese condominiali. L'appartamento ha la particolarità di avere un bagno comune con un'altro appartamento che sta sullo stesso corridoio. Guardando la pianta (vedi allegato) l'immobile si compone di una cucina abitabile, due camere da letto, una camera media dove è stato ricavata una doccia e stireria e un wc in comune. Il riscaldamento è autonomo. Classe energetica G. Spese condominiali pari a 60 € mensili. I dati e le informazioni presenti nell'annuncio hanno carattere esclusivamente informativo e non costituiscono elemento contrattuale.

  • € 60
  • Condominio mensile

Caratteristiche

Condizioni: Abitabile
Riscaldamento: Autonomo
Piano: 2 - piani edificio: 4
Cucina: Abitabile
Terrazzo: No
Anno di Costruzione: 1942

Foto

Appartemento locato in via del Broletto - 1
Appartemento locato in via del Broletto - 2
Appartemento locato in via del Broletto - 3
Appartemento locato in via del Broletto - 4
Appartemento locato in via del Broletto - 5
Appartemento locato in via del Broletto - 6
Appartemento locato in via del Broletto - 7
Appartemento locato in via del Broletto - 8
Appartemento locato in via del Broletto - 9
Appartemento locato in via del Broletto - 10
Appartemento locato in via del Broletto - 11
Appartemento locato in via del Broletto - 12
Appartemento locato in via del Broletto - 13
Appartemento locato in via del Broletto - 14
Appartemento locato in via del Broletto - 15
Appartemento locato in via del Broletto - 16
Appartemento locato in via del Broletto - 17
Appartemento locato in via del Broletto - 18
Appartemento locato in via del Broletto - 19
Appartemento locato in via del Broletto - 20
Appartemento locato in via del Broletto - 21
Appartemento locato in via del Broletto - 22
Appartemento locato in via del Broletto - 23
Appartemento locato in via del Broletto - 24
Appartemento locato in via del Broletto - 25
Appartemento locato in via del Broletto - 26
Appartemento locato in via del Broletto - 27
Appartemento locato in via del Broletto - 28
Appartemento locato in via del Broletto - 29

Planimetrie

Appartemento locato in via del Broletto - 1

Mappa

Invia la tua ricerca all'agenzia

Descrivi l'immobile che cerchi e invia la ricerca all'agenzia.

Proponi il Tuo Immobile

Proponi il tuo immobile alla nostra agenzia.

Newsletter Immobiliare

Ricevi le nostre proposte immobiliari direttamente nella tua email!